Time to Access

(e)co system

Een betaalbaar prototype voor co-housing dat zich aanpast aan de gemeenschap die erin leeft


Time to Access werd uitgenodigd om een prototype te ontwerpen voor de Boom Open Studio, samen met 7 verschillende bureaus, namelijk Space&Matter, KAW, Krft, Elephant, MVRDV, B-Invented, en NL Architects. In het open atelier ontwierpen verschillende architecten, in co-creatie met bouwers en ontwikkelaars, kant-en-klare bouwsystemen. Door een innovatief ontwerp- en ontwikkelproces en het gebruik van digitale tools zijn de bouwsystemen al op VO-niveau gebracht. Daarnaast zijn deze prototypes betaalbaar en aanpasbaar voor elke locatie.



Met dit project willen we het maximale halen uit een innovatief product, door gebouwen te produceren die kunnen worden aangepast en eigen gemaakt worden door de gemeenschappen die erin wonen. Deze gemeenschappen verdienen namelijk een plaats in onze steden, die steeds duurder en ontoegankelijker worden.


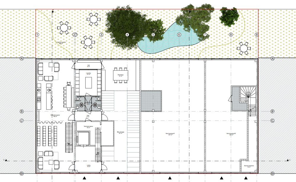
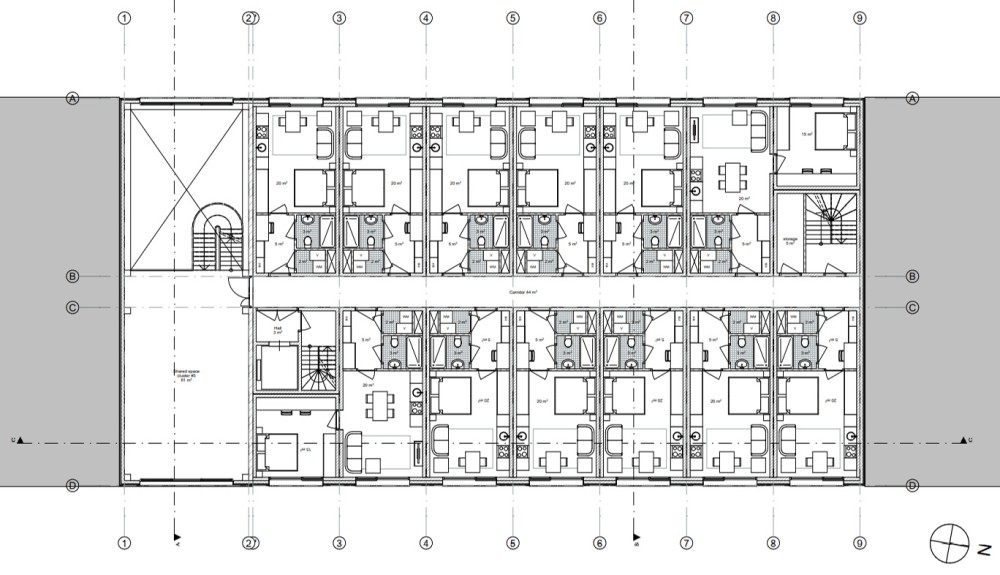
Het prototype dat wij hebben ontworpen heeft een focus op betaalbaarheid en gemeenschappelijk wonen. De naam (e)cosysteem vindt zijn inspiratie in ecologie, co-housing en systeemdenken. Het flexibele wooncomplex is ontworpen als een co-housing organisme, waarin clusters van appartementen (variërend van 30m2 tot 74 m2) gemeenschappelijke ruimtes, die zij zelf hebben ingericht, op elke verdieping delen. Collectieve faciliteiten die (naast de woningen) door de gemeenschap worden beheerd en semi-publiek toegankelijk zijn, zoals een gedeelde wasruimte, evenementenruimte, buurtcafé of een moestuin, bevinden zich op de begane grond en staan ​​open voor buurtbewoners. De gedeelde aspecten en eigen ruimte van het gebouw komen duidelijk tot zijn recht in het ontwerp van het gebouw, waarbij de appartementen simpel zijn ingedeeld en rust uitstralen, en de collectieve ruimten een grandioze uitstraling hebben en uitgesproken zijn.  

read more

Dankzij een efficiënt gebruik van de BoomBuilds houten prefab modules, de hybridisatie met andere gestandaardiseerde prefab elementen (hetzij in CLT of prefab beton) en een bewuste afwerking en materiaalkeuze, blijven de bouwkosten laag, waardoor het prototype ideaal is voor middenhuur en sociale huisvesting.

Duurzaamheid staat centraal in de innovatieve bouwmethode van Boom Builds, hier hebben wij verder op geborduurd wat resulteerde in een zeer compact en daarom energiezuinig gebouw, waarbij gekozen is voor biobased en, mogelijk, upcycled materialen voor gevels en de afwerkingen aan de binnenkant van het gebouw.

Het prototype kan worden aangepast aan de meest uiteenlopende bouwmorfologie en ontsluitingschema's. De simpelste versie is eenvoudig gemaakt van een gedeelde plint en 3/4 verdiepingen met 15/20 appartementen en een plat dak. De ideale configuratie is een gebouw dat 30/40 eenheden beslaat, verdeeld door een centrale gang die gedeelde ruimtes omhelst, met een schuin dak. In andere variaties kunnen de appartementen ook een galerij omhelzen en kan het gebouw worden opgeschaald tot een flatgebouw, of zodat het ook een binnenplaats omvat.


Aanpasbaar aan verschillende locaties

2021 - heden

Co-housing

2.600m2 BVO (schaalbaar tot 5.000m2)

30 middenhuurwoningen van 30m2 tot 75m2, gemeenschappelijke ruimtes, niet-woonfuncties

Energieneutraal, gebouwd met geprefabriceerde biobased houten modules

Boombuilds is in 2019 opgericht door een team van architecten, aannemers, ontwikkelaars en andere impact-driven stadsmakers. Boom Builds zet zich in om op grote schaal klimaatpositieve en toekomstbestendige woningen aan te bieden door middel van het populariseren van modulair bouwen met hout. Modulaire houtsystemen zijn eenvoudig aanpasbaar aan de omgeving waarin zij zich bevinden, hebben een hoge CO2-opslag, en creëren een gezonde en prettige leefomgeving. Modulaire houtbouw past echter niet goed bij bestaande ontwikkelprocessen, en de maatwerkoplossingen die zij bieden leiden vaak tot hoge kosten en onzekerheid. Daarom heeft Boombuilds een nieuw ontwikkelproces gecreëerd, dat de voordelen van modulaire houtsystemen combineert met een hoogwaardig architectonisch ontwerp en een zeer efficiënt en snel bouwproces. Boombuilds wil een platform zijn voor ontwikkelaars met keuze uit kant-en-klare bouwsystemen voor architecten en houtbouw ontwikkelaars.


TEAM

Ontwikkelaar - (e)co-systeem is een project in opdracht van Boom Builds
Constructeur en bouwfysica - B-Invented
Parametisch ontwerp - OMRT