
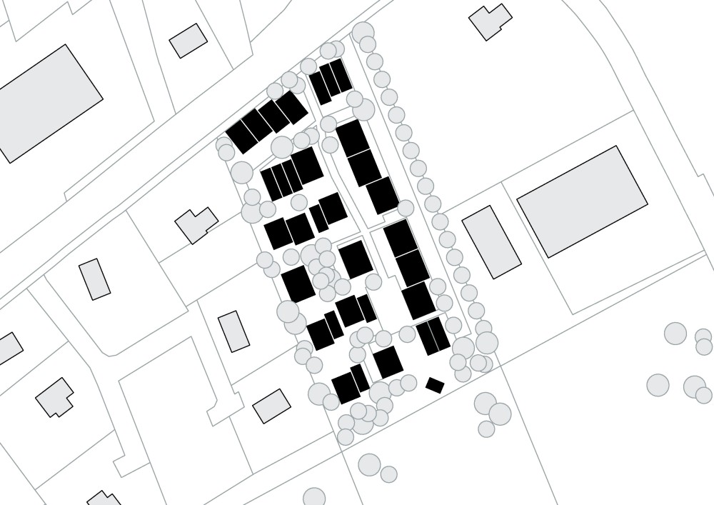
Aan de westzijde van het perceel bevindt zich een gemeenschappelijke parkeerplaats, inclusief gedeelde oplaadpunten voor elektrische voertuigen. De rest van het perceel is volledig autovrij. Een voetgangers-/fietsstraat doorkruist het gebied en eindigt op een groot centraal plein naast een gebouw met coworking-faciliteiten, een café en evenementenruimte. Het plein kijkt uit over het natuurreservaat op het zuiden. 55 woningen zijn verdeeld in een weelderige groene omgeving en gegroepeerd in 4 clusters die worden afgewisseld met wandelpaden.